
The Church Street Community Resource Center (CRC)’s mission is to be a beacon of hope in the Smyrna community through its commitment to serving those in need. The continued partnership with the Atlanta Food Bank has allowed us to assist with food to the most vulnerable in our community.

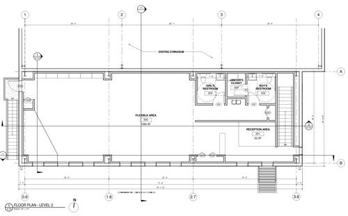
The upper level will be a space dedicated to the youth in our congregation. Space will be used for children’s church and youth church.

YOUTH ZONE DESIGN INTENT
The Youth Zone purpose is to create a space for young people to feel comfortable and welcomed. A place where ideas and open dialogue is created. Children and the youth are shaped by what they experience through learning and how they are treated. At some point through this journey they tell their stories on their own terms, having the room to do that is part of their growth and development.
The design intent is an open flexible space; where organized and improvised activities can occur. Comfortable seating for socialization and open dialogue would be an integral part of the design. In addition; a safe environment for children to learn about God’s love through object lessons, sermons, arts and crafts and drama activities.
The design intent is an open flexible space; where organized and improvised activities can occur. Comfortable seating for socialization and open dialogue would be an integral part of the design. In addition; a safe environment for children to learn about God’s love through object lessons, sermons, arts and crafts and drama activities.
The Community Resource Center (CRC) building expansion consists of the following:
The ground level of the CRC flow for food distribution consists of entering the rear door of the gym to a check-in window, proceeding to a waiting area, from there to a food distribution area, thence exiting into the parking lot.
The ground level of the CRC flow for food distribution consists of entering the rear door of the gym to a check-in window, proceeding to a waiting area, from there to a food distribution area, thence exiting into the parking lot.

look at some of the work we have done








To make a Donation, click on the card and choose 'Restoration 30'. See below how to make a recurring donation.

